Kinley Estate - Planning Applications & Development

4 Melba Avenue, Lilydale VIC 3140, Lilydale 3140  View Map

Google Map

Location

Lilydale Quarry site located at 4 Melba Avenue, Lilydale VIC 3140.

Proposal

Kinley Estate is a planning project that is developing the former Lilydale Quarry Site into a new estate in the Eastern Suburbs. Currently, there are two major permits with council, being for the Subdivision and Earthworks processes.

Where more permits arise, these will be added to the drop-down options below to display further information for each part of development.

View planning applications

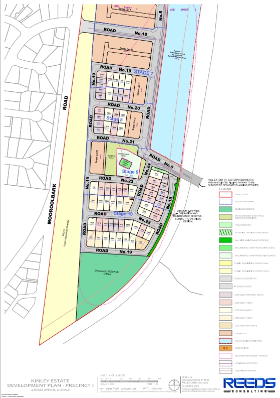
Subdivision - Precinct 1 (Current status: Under assessment)

Council has received an application that seeks approval for the redevelopment of Precinct 1 of the former Lilydale Quarry site located at 4 Melba Avenue, Lilydale VIC 3140.

The application is currently under assessment.

Current status: Under assessment

Read the full application

Application number

YR-2022/854

Proposal

  • Staged multi-lot subdivision, comprising 376 allotments to be constructed across 10 stages, an internal road network, and two access roads to Mooroolbark Road.
  • Earth works and associated retaining structures, including significant soil cut and fill to accommodate the subdivision development.
  • Creation of access to a road in a Transport Zone 2 (Mooroolbark Road).
  • Removal of vegetation both on the land that will be subject to the subdivision and within the land affected by Public Acquisition Overlays for the future Lilydale Bypass and widening of Mooroolbark Road. 

Estimated cost of works

$23,650,000

Planning permit triggers

Clause 37.02 - Comprehensive Development Zone

Pursuant to the provisions of the Clause 37.02-3 a planning permit is required to subdivide land.

Pursuant to the provisions of the Clause 37.02-4 a planning permit is required to carry out general bulk-earthworks.

Clause 44.01 - Erosion Management Overlay

Pursuant to Section 3.0 of Schedule 1 to EMO, a permit is required to:

  • Subdivide land
  • Construct a building or construct or carry out works
  • Earthworks greater than 1m above or below the natural ground level
  • Damage, remove, destroy or lop any vegetation

Construct a retaining wall with a height of more 1 metre.

Clause 45.01-1 - Public Acquisition Overlay

Pursuant to the provisions of the Clause 45.01-1 a planning permit is required to:

  • Subdivide land
  • Construct a building or carryout works on land in Public Acquisition Overlay (PAO)

Damage, remove, destroy or lop any vegetation in Public Acquisition Overlay (PAO).

Clause 52.02 - Easements, Restrictions and Reserves

Pursuant to Clause 52.02, a permit is required to create a restriction.

Clause 52.17 - Native Vegetation

Pursuant to Clause 52.17-1, a permit is required to remove, destroy or lop native (remnant) vegetation, including dead native vegetation.

Clause 52.29-2 - Land Adjacent to the Principal Road Network

Pursuant to Clause 52.29-2, a permit is required to:

Create or alter access to:

  • A road in a Transport Zone 2.
  • Land in a Public Acquisition Overlay if a transport manager (other than a municipal council) is the acquiring authority and the acquisition is for the purpose of a road.

Subdivide land adjacent to:

  • A road in a Transport Zone 2.
  • Land in a Public Acquisition Overlay if a transport manager (other than a municipal council) is the acquiring authority and the acquisition is for the purpose of a road.

Photo Gallery

Earthworks - Precinct 1 (Current Status: Approved)

Council have approved the planning application for the redevelopment of the former Lilydale Quarry site located at 4 Melba Avenue, Lilydale VIC 3140.

Current Status: Approved

Read the full application

Application number

YR-2024/142

Proposal

Bulk Earthworks and removal of vegetation

The permit allows bulk earthworks within Kinley Estate Precinct 1 area, including significant soil cut and fill and associated vegetation removal to accommodate the future subdivision development (currently being considered separately under Planning Application YR 2022/854).

The works relate to the area on the western side of the railway line of the Kinley Estate, and include:

  • Access to the site from Nicholson Lane. 
  • Bulk earthworks to facilitate the future subdivision layout and topography.
  • Removal of vegetation both on the land that will be subject to the future subdivision and within the land affected by Public Acquisition Overlays for the future Lilydale Bypass and widening of Mooroolbark Road. 
  • Works on land in an Erosion Management Overlay.
  • Access to the site will be from Nicholson Lane

Read more about the broader Lilydale Quarry Redevelopment.

Estimated cost of works

$6,720,000

Planning Permit Triggers

Zone

  • Clause 37.02-4 CDZ Schedule 1

A permit is required for general bulk earthworks.

Overlays

  • Clause 45.01 Public Acquisition Overlay

A permit is required to:

  • Construct a building or carryout works on land in Public Acquisition Overlay (PAO)
  • Damage, remove, destroy or lop any vegetation in Public Acquisition Overlay (PAO)
  • Clause 44.01 Erosion Management Overlay

A permit is required to:

  • Construct a building or construct or carry out works
  • Earthworks greater than 1m above or below the natural ground level trigger a permit
  • Damage, remove, destroy or lop any vegetation

Particular Provisions

  • Clause 52.17 Native Vegetation

A permit is required to remove, destroy or lop native vegetation (remnant vegetation), including dead native vegetation if Clause 52.17-7 states that a permit is not required.

Photo Gallery